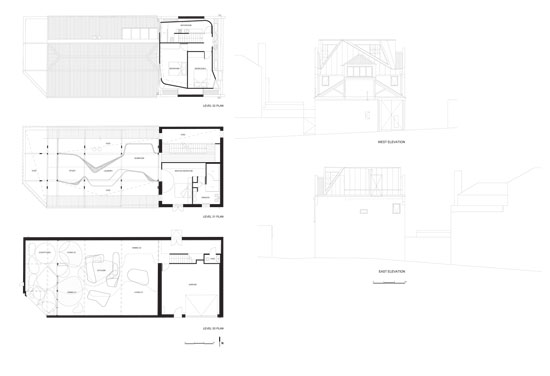
An architectural design can be considered green or eco-friendly for various reasons and in the case of the Cloud No.9 by Andrew Simpson Architects. The Cloud No.9 has ample natural illuminations in the entire structure.


If you were to tour around the house through its photos, you can obviously notice the natural illumination coming in through its translucent to transparent glass walls. Residents of this home will experience natural light in almost all parts of the house from the kitchen to the staircase and even in the bedroom. The Cloud No.9 house is spacious enough and it looks like a renovation of an old structure, which is a great act of reducing waste.








Source: Andrew Simpson Architects
